0761 - Saighton

Single storey rear extension

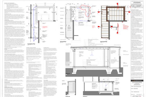
Our client initially approached a local builder with a view to constructing a single storey extension for their newly constructed house in Saighton.  The builder recommended they contact City Architectural to prepare a design, secure planning permission and building regulation approval. The brief was aimed at improving the living accommodation and also provide some external storage.  A number of options were explored which included traditional and contemporary designs.  The final design creates a principal living space that has a strong connection to the garden with external storage integrated into the structure.